Het was misschien een beetje naief van me dat ik dacht alleen maar enthousiaste reacties te krijgen op de betaalbare woningen die we binnenkort gaan bouwen in Alphen aan den Rijn. Behalve de lof die we ontvingen zijn er ook vakgenoten, politici en betrokken burgers die dergelijke kleine appartementen maar “kippenhokken” vinden. Kritiek kan geen kwaad, het houdt je scherp maar als ik er wat langer over nadenk dan berust die ongelukkige vergelijking op een misvatting. Het gaat namelijk voorbij aan het feit dat er een groot tekort aan kleine appartementen is.
Ondanks dat we een dichtbevolkt land zijn beschikken Nederlanders gemiddeld over 53 m2 woonoppervlak per persoon waar Duitsers en Belgen op 47 m2 en Britten op gemiddeld 44 m2 leven. Op Ierland na is er geen land in Europa waar zo weinig mensen in appartementen wonen. We hebben ruim 5 miljoen eengezinswoningen terwijl er maar iets meer dan 2,5 miljoen gezinnen zijn van meer dan 2 personen. Je zou al die grote woningen een teken van welvaart kunnen noemen maar het is de vraag of het huidige bestand nog aansluit bij de woningbehoefte.
Steeds minder Nederlanders vormen een gezin. De komende jaren groeit het aantal huishoudens voor het merendeel met alleenstaanden. Tegelijkertijd worden steeds meer eengezinswoningen bewoond door ouderen. De verwachting is dat door ziekte en overlijden het aantal vrijkomende eengezinswoningen fors zal stijgen. Er zal vooral een tekort aan kleine appartementen ontstaan.
Helaas bestaat er nog altijd een sentiment tegen het bouwen van compacte appartementen. Alsof de enige manier om woongeluk te bereiken het bieden van overmatig veel ruimte is. Naast het feit dat iedere extra vierkante meter een paar duizend euro extra kost is het maar de vraag wat je als klein huishouden aan die overmaat hebt.
Het is aan ons als architecten de taak om te laten zien dat het ook anders kan. Door woningen te ontwerpen die aansluiten op de behoefte van kleine huishoudens. Door intelligente inrichtingsmogelijkheden waardoor je zoveel mogelijk nuttige verblijfsruimte hebt. Door binnen de kleine oppervlakte de flexibiliteit te bieden om voor bewoners nu en in de toekomst een eigen invulling aan de appartementen te geven.
Natuurlijk hebben we al veel pogingen gedaan om kleine appartementen te ontwerpen. Ik laat onderstaand een aantal voorbeelden zien en houd me aanbevolen voor commentaar:
Kickstart Alphen

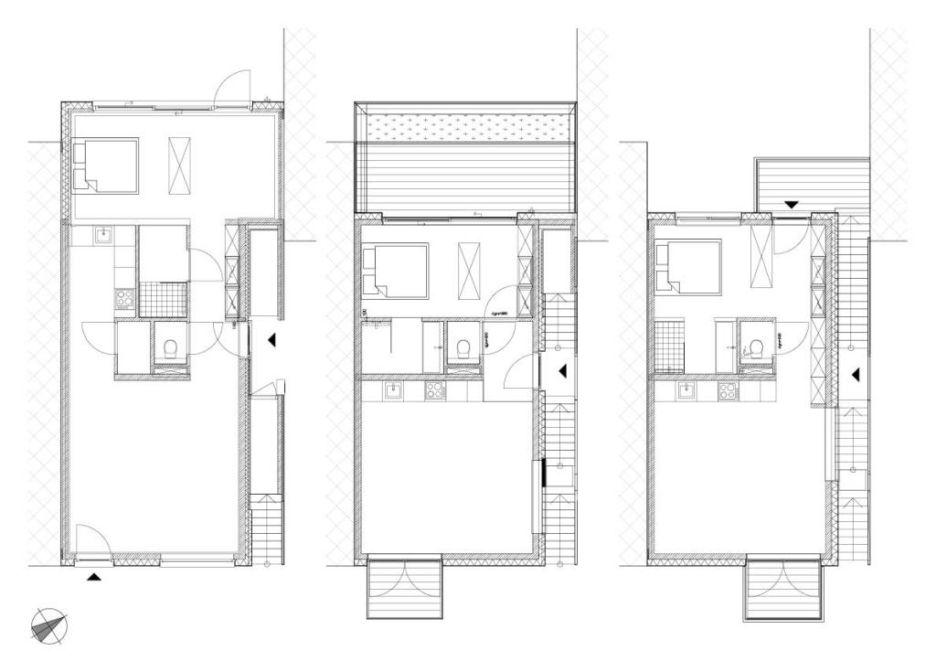
In Alphen aan den Rijn hebben we met onze Ruimtemaken bv deze woningen van ca 48 m2 ontwikkeld en ontworpen (zie Kickstart Alpen) Dankzij de vierkante plattegrond hebben de appartementen veel indelingsmogelijkheden. Drie varianten op hetzelfde type staan hier afgebeeld. De buitenruimte is gecombineerd met de galerij aan de zuidgevel van de appartementen. Het koopappartement met bovenstaande plattegrond kost € 232.500 VON. De woningen kennen een recht van opstal waarvoor aan de grondeigenaar via de Vereniging van Eigenaren een maandelijkse vergoeding van 50 euro per appartement moet worden betaald. De gemeente heeft een anti-speculatiebeding ingesteld voor een periode van 5 jaar. In een week tijd waren alle 48 woningen verkocht
Eureka! Kolenkitbuurt Amsterdam

Dit is de kleinste woning die we met XOOMlab ontwikkelen en ontwerpen voor Wooncoöperatie Eureka! De bewoners bouwen honderd woningen in de Kolenkitbuurt om aan zichzelf te verhuren (zie Coöperatie Eureka!). De 20 woningen, type S, zijn iets meer dan 40 m2 en worden aangeboden voor een maandhuur vlak boven de sociale huurgrens. Dankzij het vele glas in de lange gevel en de brede balkons voelen de woningen ruim.

De woningen type M voor Eureka! zijn net iets groter; ca 49 m2 waardoor er meer indelingsmogelijkheden zijn. Hierboven is het resultaat te zien van de workshop die we daarvoor met toekomstige bewoners organiseerden. Door een compacte opstelling van badkamer, toilet en installaties kan een extra logeerkamer in de plattegrond opgenomen worden. In het complex komen 40 van deze huurwoningen. Ook deze woningen vallen in de middeldure huurcategorie. Verder zijn er in Eureka! nog 20 middeldure huurwoningen type L van 70 m2 en 20 vrije sectorwoningen waarvan de XL-woningen groter dan 90 m2 zijn.
DOK 2404 fase 2

Deze woningen in Alphen aan den Rijn (zie Langeveld Alphen) die we vorig jaar hebben opgeleverd voor een particuliere belegger worden deels in de sociale huur en deels in de middeldure huur aangeboden. De woningen zijn 46 m2 en eenzijdig georiënteerd met een balkon op het westen. Dankzij de brede beukmaat van ruim 8 meter passen de slaapkamer, de woonkamer en de keuken naast elkaar. Het woongebouw bestaat uit 18 appartementen in grootte variërend van 46 tot 80 m2.
High End Buiksloterham

De 17 woningen in High End Buiksloterham hebben een nog grotere variatie in afmeting. Er zijn woningen van ruim 150 m2, van 85 m2 en de kleinste woning waarvan de plattegrond hier staat afgebeeld is 47 m2. De ruimte is een open loft met als unieke kwaliteit het ruime balkon waar grote plantenbakken op staan die de zuidgevel het hele jaar laten baden in het groen. Onder druk van de stijgende marktprijzen verkochten wij met XOOMlab deze woningen voor € 325.000 VON. Nog geen twee jaar na oplevering wordt één van deze appartementen te koop aangeboden. De vraagprijs is € 449.500 k.k. Ik word daar niet vrolijk van maar het geeft wel aan hoe gewild dit type woning is.

De Burman

Bij het optoppen van de Burmandwarsstraat (zie “de Buman vernieuwd”) was er minder vrijheid. De beukmaat van 5 meter lag vast en de schachten en stabiliteitswanden werden gedicteerd door de bestaande woningen in de flat onder deze woningen. We kozen er voor kleine woningen toe te voegen. Vanwege de hoge marktprijzen in het centrum van Amsterdam zouden de woningen anders onbetaalbaar worden. Het resultaat is dat er 15 units zijn toegevoegd aan de bestaande flat van 37 woningen.

Jan Ligthart

De woningen die we met XOOMlab hebben ontwikkeld en ontworpen in de voormalige Jan Ligthartschool (zie “transformatie Jan Ligthartschool…”) zijn bijna allemaal 60 tot 80 m2 groot. Alleen deze woning is met 48 m2 wat kleiner. Het is de voormalige fietsenstalling die uitkijkt op het schoolplein. Nu de stoeptegels zijn verwijderd en de speelplaats compleet groen is ingericht is dit misschien wel de mooiste van de 19 middeldure huurwoningen.

Wavewood

Samen met Dirk Jan van Wieringhen Borski hebben we dit mini-appartementengebouw ontwikkeld en ontworpen. Het bestaat uit 3 appartementen die bereikbaar zijn via een buitentrap. (zie Wavewood) Door het verspringen van de trap, de entrees en de buitenruimtes is iedere plattegrond net iets anders. De woon-werkwoning op de begane grond is 60 m2. De twee woningen daarboven zijn 45 m2.

Huize Potteneters

Voor de woning die ik voor ons eigen gezin heb ontworpen op Centrumeiland kon ik niet achterblijven. (zie Huize Potteneters) Onze inmiddels volwassen kinderen wonen ieder op een eigen verdieping die vanuit het centrale trappenhuis bereikbaar is. De verdiepingen hebben een netto afmeting van ca.44 m2 en hebben een eigen keuken, badkamer, toilet, slaapkamer en woonkamer. Regelmatig krijg ik te horen dat het toch wel heel luxueus is dat je kinderen op een eigen verdieping kunnen wonen en ik ben de laatste om dat te ontkennen. Het herinnert me eraan dat een klein appartement wel degelijk heel comfortabel kan zijn.
Doorzagen
In de Cobouw Podcast Doorzagen sprak ik met Thomas van Belzen over het ontwerpen en ontwikkelen van kleinere woningen:
