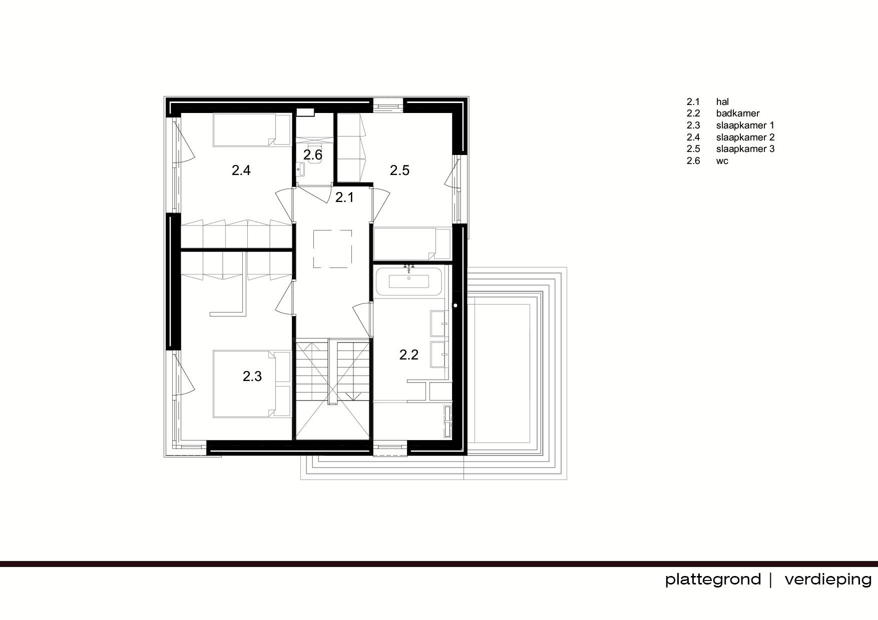
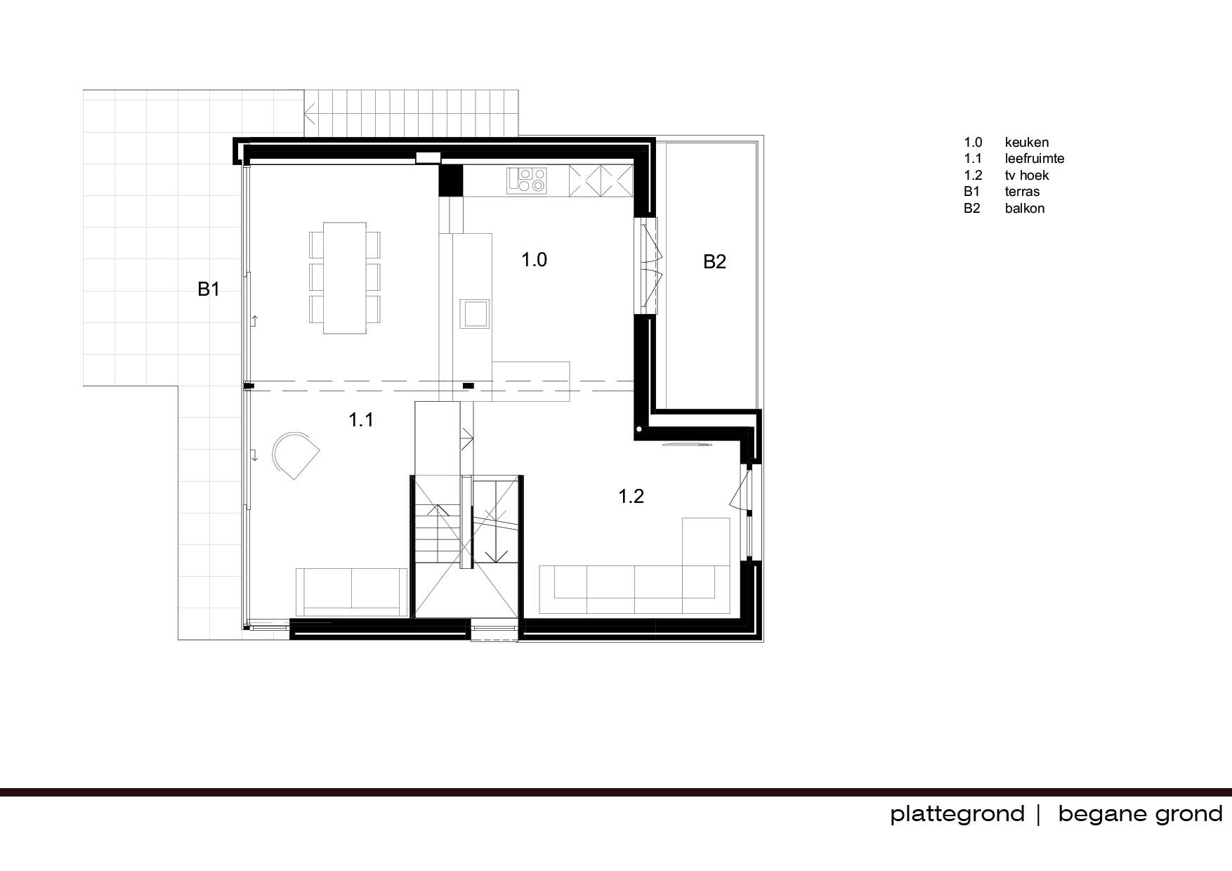
Voorjaar 2015 maakten we kennis met de opdrachtgevers voor deze vrijstaande woning. Ze hadden een zelfbouwkavel gekocht in het project Bos Uyterlinde tussen Soest en Amersfoort. Samen met XOOMlab-collega Jeroen Snel vertaalden we hun wensen in een architectonisch en bouwkundig ontwerp. Het idee van het huis is dat je beneden binnenkomt waardoor de verdieping daarboven helemaal vrij is om te wonen. Dankzij het glooiende terrein loop je aan de achterkant vanuit de woonkamer zo het terras op de bossen in terwijl aan de voorkant op het oosten een balkon is ontworpen voor de ochtendzon.
Het liefst wilden de opdrachtgevers direct na de zomervakantie 2016 met hun gezin op deze prachtige plek wonen. We gaven aan dat we ons best gingen doen maar dat de tijd daarvoor krap was. Het kantoorgebouw dat op deze plek stond moest nog gesloopt worden. Januari 2016 werd de grond bouwrijp opgeleverd. We hadden de vergunningen en de firma Karbouw was als aannemer geselecteerd.
Gedurende de bouw hebben we het proces intensief begeleid. De planning afgestemd en de bouwkosten bewaakt. Tot op het laatste detail is er overleg geweest of dat wat in onze BIM-modellen is bedacht ook in werkelijkheid gerealiseerd kon worden. De kunst is dat wat moeilijk is makkelijk te laten lijken. Nu zijn de CO2 gestuurde ventilatieroosters boven de ramen zowel binnen als buiten nauwelijks te zien. Dat het huis dankzij de WKO-installatie en het dak vol zonnepanelen bijzonder duurzaam is houdt het voor de buitenwereld verborgen. Zo gauw de temperatuur het toelaat wordt een tweede laag kunststof stucwerk op de gevelbanden aangebracht. Dan vormen balkonbalustrade, waterslagen en plafond nog meer één geheel.
Het is gelukt. Sinds september wonen de opdrachtgevers in de villa. De eerlijkheid gebied te zeggen dat er aan de gevel nog druk gewerkt werd en dat er ook binnen nog wat puntjes op de i gezet moesten worden maar inmiddels is ook het vaste interieur opgeleverd. Ellen Plomp maakte in overleg met ons en de opdrachtgevers het interieurontwerp.
Met alle partijen kijken we met plezier terug op een bouw- en ontwerpproces dat vlot en prettig verliep. Als het goed is kun je dat nog jarenlang in het resultaat terug zien.









Projectgegevens
- Opdrachtgever: Particulier
- Architecten: Harvey Otten en Jeroen Snel (AB101)
- Interieurontwerp: Ellen Plomp
- Aannemer: Karbouw
- Adres: Bos Uyterlinde Amersfoort

[…] XOOMlab collega Jeroen Snel ontwierpen we één van de woningen. (zie Villa in Bos Uyterlinde ) Jeroen schoot de […]